GRAND NORD RÉSIDENTIEL
RESTAURATION
INSTITUTIONNEL CORPORATIF

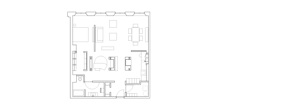
AMÉNAGEMENT D'UN LOFT     MONTRÉAL, QUÉBEC     2016

  •  

    Aménagement d’un loft au Corticelli, un ancien bâtiment industriel situé en bordure du Canal Lachine à Montréal. Trois principes directeurs sont à la base de l’aménagement du projet : - Tous les espaces intérieurs ont un premier plan défini, ainsi que des vues longues vers les espaces adjacents, accentuant la profondeur de l’espace. - La hauteur des espaces intérieurs est accentuée par les proportions verticales des éléments - L’espace du loft est structuré par trois murs monolithiques, reliant les colonnes entre elles deux à deux. La palette de matériaux est restreinte : murs blancs, acier brut et plancher de merisier.

 

PHOTOS : VISTA PHOTOS

 

<